VIALE MONTEGRAPPA, contesto di sole 4 unità, proponiamo in zona silenziosa ed immersa nel verde ampio mini appartamento al piano terra, completamente arredato e composto da ingresso nel soggiorno con ...
In contesto di pregio in posizione dominante, affittasi casa a schiera centrale ed indipendente ad Onè di Fonte. La casa è stata da poco completamente ristrutturata, con finiture di livello come l’ar ...
[ITA] Disponibile da: 02/03/2026 Mensilità minime prenotabili: 1 Per prenotare l'annuncio clicca sul bottone "Prenota Qui" [ENG] Available from: 02/03/2026 Minimum months rental: 1 To book the listin ...
Rif.: PAL 035 Per informazioni Paolo 3488545745 Immobiliare Luxor è lieta di presentare un affascinante appartamento trilocale in affitto, situato al primo ed ultimo piano di una palazzina tranquilla ...
SILEA: SILEA CENTRO In zona centralissima affittasi mini appartamento del '90 al secondo piano completamente arredato composto da: ingresso, soggiorno con angolo cottura e terrazzo esposto a sud, cam ...
Immobile in affitto a San Biagio di Callalta(TV). Numero Locali: Dimensione (mq): ...
Disponibile da subito, locale commerciale uso ufficio con vetrina posizionato lungo la strada principale, l'ufficio si compone di un'unica stanza unica di circa 40 mq, con anti bagno e bagno. Esclusi ...
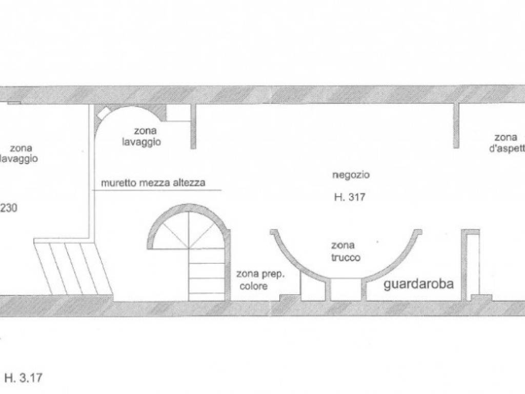
Signoressa centro, ufficio direzionale al piano terra di circa 300 mq, di cui 220 mq adibiti a spazio commerciale con cinque postazioni, doppio servizi, sala riunioni e magazzino al piano di circa 80 ...
Appartamento al terzo piano con ascensore, composto da ingresso, cucina con terrazza, soggiorno, due camere e doppi servizi, garage. Disponibile da subito, contratto transitorio no residenza, solo pe ...
Zona Duomo - Nel cuore di un contesto riservato e signorile, all'interno di un elegante palazzo composto da sole due unità indipendenti, proponiamo in locazione un appartamento di straordinaria metra ...