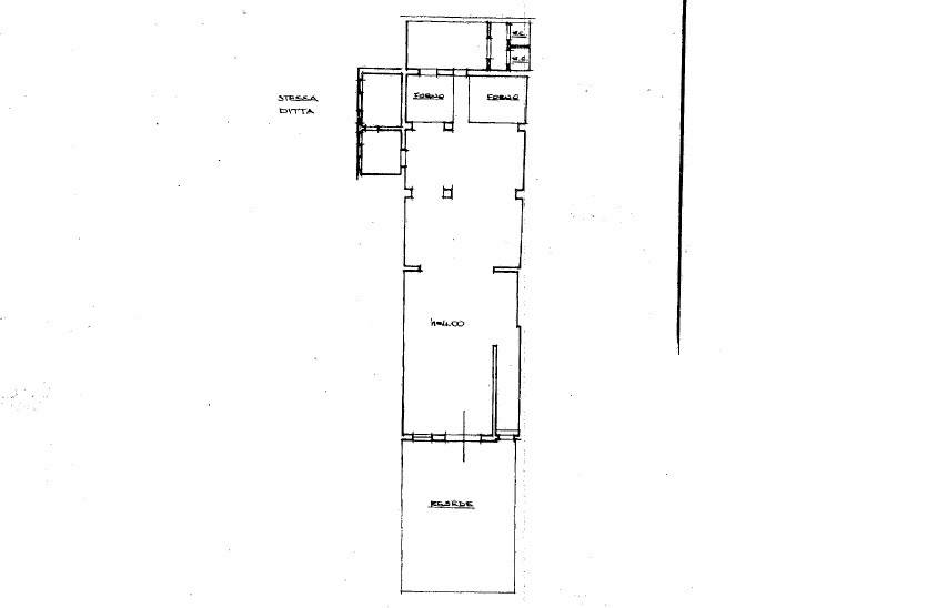
Prato, Narnali – Nel tranquillo quartiere di Narnali proponiamo in vendita questa casa indipendente libera su due lati e così composta: dal resede frontale si accede all’immobile direttamente sull’in ...
NOSTRA ESCLUSIVA! Proponiamo in vendita un elegante appartamento di quattro vani situato in Via Francesco Baracca, a Prato, in contesto condominiale servito da ascensore. L’immobile, posto al sesto p ...
Zona tranquilla, in contesto residenziale si propone in vendita bell' appartamento posto al piano terzo ed ultimo con ascensore, molto panoramico e luminoso. L' immobile è composto da ingresso in zon ...
Appartamenti in bel palazzo storico nel centro di Prato completamente ristrutturati in un complesso elegante con finiture di pregio. Il palazzo offre varie metrature di appartamento per soddisfare mo ...
GRIGNANO: In posizione strategica, a pochi passi da tutti i principali servizi, proponiamo in vendita un appartamento monolocale di circa 40 mq, situato al secondo piano comodamente raggiungibile in ...
Proponiamo fondo commerciale di circa 130 mq caratterizzato da soffitti alti e bella luminosita' naturale grazie alle numerose finestre e ai due sporti.L'immobile e' da rivedere ,offrendo cosi' la po ...
Montemurlo: appartamento in colonica, di circa 100 mq, diviso in: ingresso, soggiorno, cucina, 2 camere da letto matrimoniali e 2 ampi servizi! Giardino di proprietà abitabile. Completamente ristrutt ...
Zona Repubblica, bell' appartamento piano attico disposto su due livelli in contesto signorile. L 'immobile al primo livello e' composto da: ingresso su un ampio e luminoso salone con camino di 58 mq ...
MERCATALE DI VERNIO - RIFERIMENTO 88 Nel centro del paese, in strada secondaria e vicino a tutti i servizi principali facilmente raggiungibili a piedi, in piccola palazzina di recente costruzione sen ...
Nel centro del paese, proponiamo terratetto in fase di ristrutturazione. L'immobile dispone di un giardino frontale con accesso carraio, utilizzabile anche come posto auto, composto da: soggiorno con ...