Vicinissimo a Piazza dei Miracoli ed in zona ad altissimo passaggio veicolare e pedonale ampio fondo commerciale suddiviso in tre ambienti tra loro comunicanti oltre il bagno con altezze oltre i 3 me ...
VENDESI CAPANNONE OSPEDALETTO PISA DI MQ 450 CON PORTELLONE INDUSTRIALE CON ALTEZZA INTERNA DI MT 6,70 CON UFFICIO E SERVIZIO IGIENICO. L'IMMOBILE è MOLTO LUMINOSO E DOTATO DI LUCERNARIO SOPRA IL TET ...
Cerved Property Services Italy propone in vendita un complesso di fabbricati rurali a Peccioli, in Via Libbiano - Legolo, di 1.500 mq. L'immobile è composto da un'abitazione civile e sei unità collab ...
Strepitosa residenza in stile Liberty in posizione riservata grazie al parco privato di 3.5 ettari e un meraviglioso bosco di cui è circondata. La proprietà gode di straordinaria tranquillità, pur es ...
Stai cercando un'abitazione unica e caratteristica? Abbiamo la soluzione perfetta per te! Vendiamo un incantevole appartamento situato in un palazzo storico in stile Liberty, a soli 5 minuti dall'usc ...
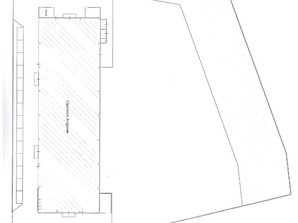
VENDESI CAPANNONE ZONA OSPEDALETTO PISA DI MQ 2000 CON CON ALTEZZA INTERNA DI MT 6.50 DI NUOVA COSTRUZIONE CON 6000 MQ DI PIAZZALE/TERRENO EDIFICABILE AL 50 PER CENTO CON LA POSSIBILITA' DI AMPLIARE ...
BIENTINA-CALCINAIA (Sardina), A due passi dal centro di Bientina, in un fabbricato di recente costruzione, proponiamo in vendita un appartamento situato al primo ed ultimo piano di una piccola palazz ...
PISA – Zona Stazione, appartamento al primo piano servito da ascensore, ampio e luminoso, composto da ingresso, soggiorno, cucina abitabile, cinque camere, bagno principale, bagno di servizio e due b ...
RIFERIMENTO LUX0606FCCD GELLO: A pochi minuti da Pisa in zona residenziale e non isolata proponiamo porzione di rustico ristrutturato e predisposto per due soluzioni immobiliari. L'immobile è stato r ...
Bellissimo appartamento di 85mq in classe A++ in condominio di nuova costruzione a piano terra composto da ingresso, ripostiglio/lavanderia, sala con cucina a vista , 2 camere, studio/terza camera, 2 ...