Comodo appartamento di Mq 85 composto da: ingresso, cucina, sala, 2 camere, cameretta e bagno , più cantina privata al piano seminterrato e cantina condominiale di Mq 30 ad uso comune. Abitabile e di ...
APPARTAMENTO PT, ZONA CENTRO: Tra le vie del Centro Storico, in posizione comoda anche di parcheggio, alle adiacenze di una piccola piazzetta con posti auto, disponiamo di Appartamento di metratura r ...
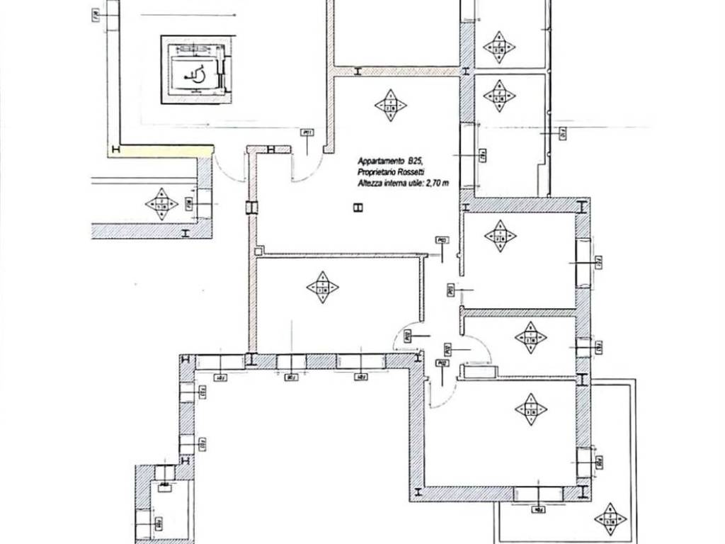
San Severino Marche Rione Settempeda: appartamento al 2°piano con garage servito da ascensore In Condominio di Nuova Costruzione, proponiamo splendido e luminoso Appartamento , servito da ascensore, ...
CASA SINGOLA CON LOCALE LAVANDERIA E GARAGE, Centro Storico: Lungo Via Lazzarelli, una delle Vie caratteristiche del Centro Storico e parallele a Piazza del Popolo, proponiamo in vendita: bellissima ...
San Severino Marche quartiere San Paolo Appartamento in vendita di 101 Mq, posto al piano Rialzato in palazzina quatrifamiliare, composto da: Ingresso, Cucina con camino, Salone, 2 Camere, Bagno, bal ...
CASA SEMINDIPENDENTE, Centro Storico: Lungo le vie caratteristiche del Centro Storico, con affaccio in una delle graziose piazzette, proponiamo luminosa Soluzione Cielo-Terra, su 3 livelli distribuit ...
San Severino Marche, loc. Cesolo, in piccolo contesto bifamiliare, vendesi appartamento al 1° piano di ca. 86 mq. con ingresso indipendente, composto da: cortiletto di ingresso, scala privata , ampio ...
CASA AFFIANCATA CON GIARDINO, Zona castello Nel cuore del suggestivo borgo di Castello, proponiamo in vendita una soluzione affiancata da ristrutturare con giardino, in posizione esclusiva. la propri ...
Appartamento al primo piano con ascensore di una palazzina ristrutturata con 110 e sisma bonus, composto da: salone con camino, terrazza coperta, cucina, balcone chiuso ad uso ripostiglio, 3 camere e ...
CASA SINGOLA CON LOC. MAGAZZINO, Località Corsciano: In prima periferia, a circa 7 km dal centro città, con strada asfaltata di comoda percorrenza, in posizione assolata con veduta panoramica, propon ...