Graziosa e accogliente villetta a schiera con vista sulle colline e adiacente al grande parco del Ginepreto, in contesto residenziale e comoda a tutti i servizi, disposta su 3 livelli con accesso ind ...
- RICHIEDI LA SCHEDA: COMPILA IL MODULO E SCOPRI TUTTI I DETTAGLI - In zona residenziale tranquilla e comoda a tutti i servizi, proponiamo un ampio quadrilocale, nuovo da impresa, situato al piano pr ...
Nuovo intervento edilizio nel centro di Pianoro Vecchio in via Nazionale angolo via Irma Bandiera, consegna prevista fine 2025 - inizio 2026. La palazzina verrà costruita con tutti i requisiti richie ...
PIANORO (NUOVO DA IMPRESA) Nuovo progetto residenziale che permette l’unione del territorio tra Pianoro Vecchia e Pianoro Nuova. Ubicato lungo l’asse della Via Nazionale, perfettamente comodo per rag ...
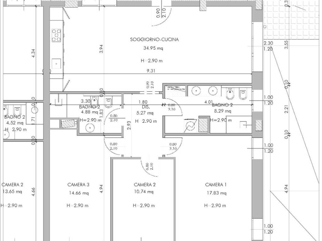
Pianoro Nuovo, centralissimo, comodo a tutti i servizi, scuole-poste-coop, nuovo appartamento in consegna per marzo 2026. L’appartamento, posto al piano terra, ha l’accesso sulla corte interna. L’ing ...
Annuncio vendita appartamento G Pianoro Nuovo, centralissimo, comodo a tutti i servizi, scuole-poste-coop, nuovo appartamento in consegna per marzo 2026. L’appartamento, posto al piano terra, ha l’ac ...
Pianoro Vecchio Proponiamo in vendita appartamento all'ultimo piano servito da ascensore, caratterizzato da ottima luminosità e spazi ben distribuiti. L'immobile si compone di: ingresso ampio e arred ...
VENDESI A RASTIGNANO (BO), zona Junior Club, capannone industriale di mq 540. ...