A pochi passi dal centro di Motta di Costigliole d’Asti, proponiamo un suggestivo complesso immobiliare composto da due ampi cascinali indipendenti e un porticato su due livelli in corpo staccato, il ...
In località Borelli, nel tranquillo paese di Moncucco Torinese, si trova questa affascinante casa semindipendente in vendita con una superficie totale di 180 metri quadrati. La casa si sviluppa su du ...
Rif: 00403 - Villa Bifamiliare Indipendente in Vendita a Calliano In posizione tranquilla e ben esposta, proponiamo in vendita villa bifamiliare indipendente, libera su quattro lati, disposta su tre ...
In Villanova d'Asti, proponiamo una villa singola in vendita, perfetta per chi cerca spazio e tranquillità. Costruita nel 1985, questa residenza si estende su una superficie di 220 mq, offrendo ampi ...
Cascina panoramica con ampi spazi e terreno, a due passi dal centro di San Damiano d’Asti In splendida posizione collinare e soleggiata, si propone in vendita una cascina indipendente da ristrutturar ...
Splendido appartamento in centro città che unisce comfort, design e praticità. Immobile di nuova costruzione, a due passi dai servizi e con un grande parcheggio pubblico nelle vicinanze. La disposizi ...
NUOVA PROPOSTA IMMOBILE DISPONIBILE Unità nel comune di Asti (AT) in via Trilussa. Trattasi di una porzione di casa di 15,5 vani composta da: -piano terra con ingresso, cucina, soggiorno, anti-wc, wc ...
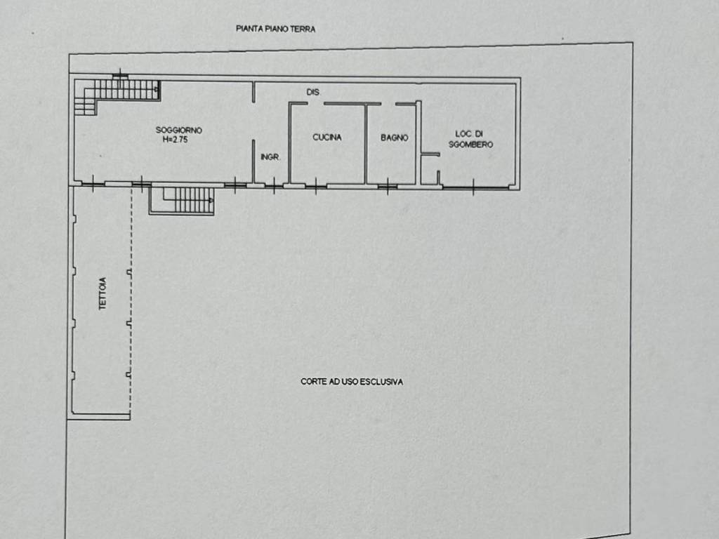
NUOVA PROPOSTA IMMOBILE DISPONIBILE Unità nel comune di Asti (AT) in via Trilussa. Trattasi di un compendio immobiliare composto da: -unità piano terreno di 6,5 vani e 156mq con ingresso, cucina, sog ...
Strada Bialera, nella zona Sud di Asti, appartamento al primo piano servito da ascensore. L'edificio ha beneficiato del bonus 110, con infissi e cappotto termico recentemente rinnovati, garantendo ef ...
Contatta la nostra agenzia per ricevere foto aggiuntive e ulteriori informazioni. 3314913978 - 0141947425 In posizione tranquilla e riservata, immersa nel verde delle colline, proponiamo in vendita c ...