Villa a Cori in Contrada Macchiarella - Foto 1
Villa a Cori in Contrada Macchiarella - Foto 2
Villa a Cori in Contrada Macchiarella - Foto 3
Villa a Cori in Contrada Macchiarella - Foto 4
Villa a Cori in Contrada Macchiarella - Foto 5

Villa, Cori

Contrada Macchiarella

€ 195.000

Descrizione

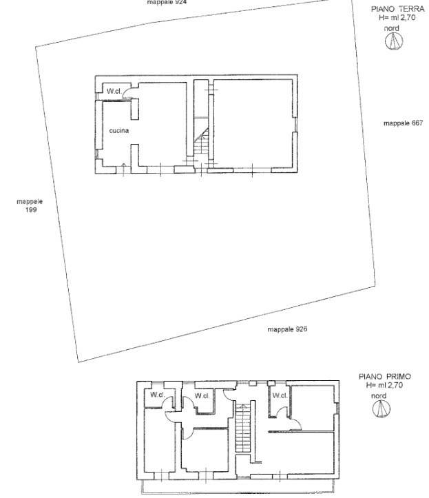
Mediazionecasa Artena propone in vendita una casa Indipendente a Cori – Giulianello (C. da Macchiarella). Nel cuore della campagna di Giulianello, precisamente in Contrada Macchiarella, proponiamo in

Inserzionista

Mediazione Casa Artena

Mail Alert Inserisci il tuo annuncio