Terreno a Santa maria imbaro in SS 524 - Foto 1
Terreno a Santa maria imbaro in SS 524 - Foto 2
Terreno a Santa maria imbaro in SS 524 - Foto 3
Terreno a Santa maria imbaro in SS 524 - Foto 4
Terreno a Santa maria imbaro in SS 524 - Foto 5

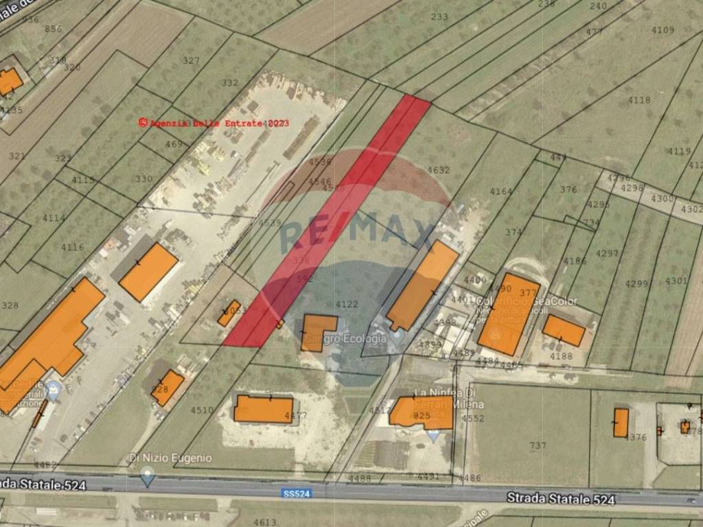
Terreno, Santa Maria Imbaro

SS 524

€ 68.000

Descrizione

Terreno edificabile di mq. 2.730, sito nel comune di Santa Maria Imbaro (CH), antistante la pasticceria "La Dolcissima". La destinazione urbanistica del terreno è produttiva, artigianale, commerciale

Inserzionista

RE/MAX App

Mail Alert Inserisci il tuo annuncio