Immobile a Siena in Via Fiorentina - Foto 1
Immobile a Siena in Via Fiorentina - Foto 2
Immobile a Siena in Via Fiorentina - Foto 3

Immobile, Siena

Via Fiorentina

€ 750.000

Descrizione

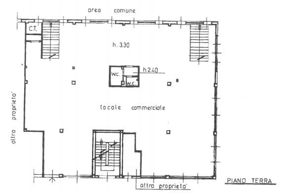
Rif.Ag. 037 - In vendita locale commerciale di 434 mq su due livelli openspace e si presta per uso commerciale di vario genere, in ottime condizioni e con ampie vetrine su strada. Nel locale sono pre

Inserzionista

IGEA Immobiliare

Mail Alert Inserisci il tuo annuncio