Immobile a Piacenza in Autostrada del Sole - Foto 1
Immobile a Piacenza in Autostrada del Sole - Foto 2
Immobile a Piacenza in Autostrada del Sole - Foto 3
Immobile a Piacenza in Autostrada del Sole - Foto 4

Immobile, Piacenza

Autostrada del Sole

Prezzo su richiesta

Descrizione

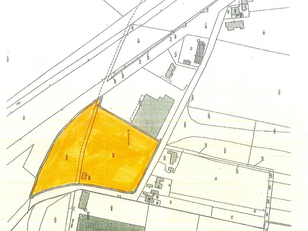
Capannone realizzabile a breve in prossimità dell'autostrada con terreno di 14054 mq , con possibilità di edificare un capannone su due piani di 4000 mq l'uno per un totale di 8000 mq . Disponibilità

Inserzionista

Terreni e Case di Paolo Bottiroli

Mail Alert Inserisci il tuo annuncio