Terreno a Montagnana in Via Boschetto - Foto 1
Terreno a Montagnana in Via Boschetto - Foto 2
Terreno a Montagnana in Via Boschetto - Foto 3

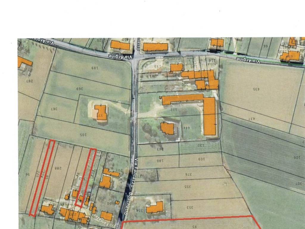
Terreno, Montagnana

Via Boschetto

€ 70.000

Descrizione

TRA MONTAGNANA E CASALE DI SCODOSIA, APPEZZAMENTO DI TERRENO FRONTE STRADA, IRRIGABILE DI HA. 1.70.58 IN UNICO QUADRO

Inserzionista

Palladio Immobiliare

Mail Alert Inserisci il tuo annuncio