Immobile a Imperia in Via della Repubblica - Foto 1
Immobile a Imperia in Via della Repubblica - Foto 2
Immobile a Imperia in Via della Repubblica - Foto 3
Immobile a Imperia in Via della Repubblica - Foto 4
Immobile a Imperia in Via della Repubblica - Foto 5

Immobile, Imperia

Via della Repubblica

€ 1.350

Descrizione

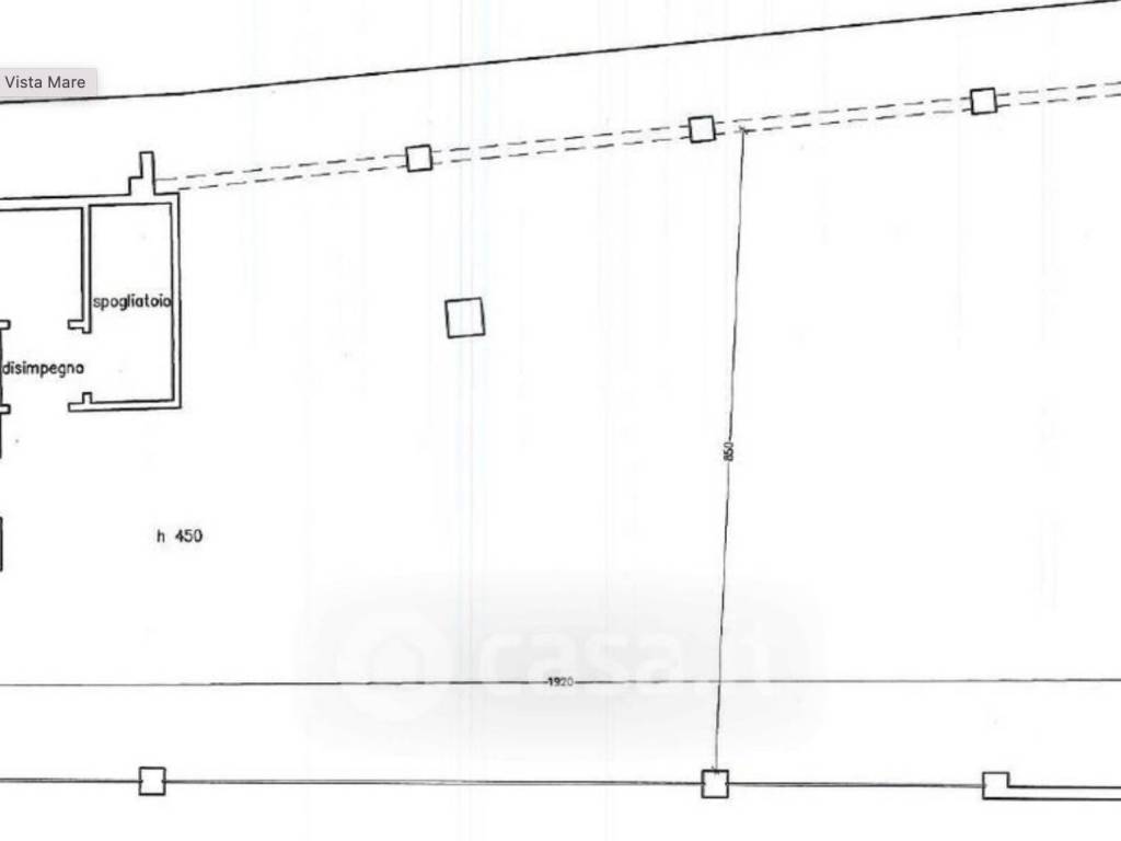
Imperia, Oneglia centro, C/3, con facile accesso carraio e area di manovra, superfice totale mq. 180, piccolo locale deposito, bagno con anti bagno e spogliatoio. Ottime condizioni, 3 accessi. Libero

Inserzionista

Immobiliare Casapiù di Vittorio Ciglia

Mail Alert Inserisci il tuo annuncio