Terreno a Isola vicentina in Via Canova, 12 - Foto 1
Terreno a Isola vicentina in Via Canova, 12 - Foto 2

Terreno, Isola Vicentina

Via Canova, 12

€ 380.000

Descrizione

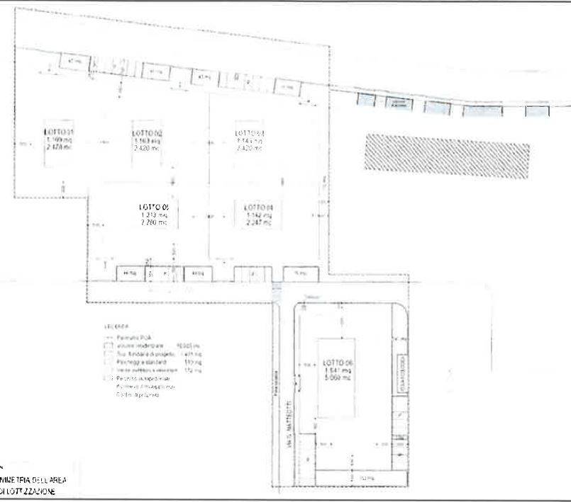
Proponiamo la vendita di n.1 lotto di terreno edificabile a destinazione residenziale di mq. 1.541 poco lontano dal centro, nel quale si può edificare un volume di 5.060 metri cubi con un’altezza max

Inserzionista

RETECASA - Agenzia di Vicenza Nord

Mail Alert Inserisci il tuo annuncio