Appartamento a Charvensod - Foto 1
Appartamento a Charvensod - Foto 2
Appartamento a Charvensod - Foto 3
Appartamento a Charvensod - Foto 4
Appartamento a Charvensod - Foto 5

Appartamento, Charvensod

€ 250.000

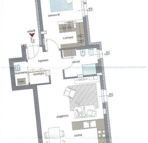
Descrizione

VENDESI IN PICCOLO CONDOMINIO DI ULTIMA GENERAZIONE, ALLOGGI DI VARIE DIMENSIONI DAL BILOCALE AL TRI-QUADRILOCALE.GLI ALLOGGI HANNO VISTA PANORAMICA E CON DOPPIA TRIPLA ESPOSIZIONE. OTTIME FINITURE,R

Inserzionista

Art Maison

Mail Alert Inserisci il tuo annuncio