Appartamento a San giovanni teatino in Via Camillo Benso di Cavour - Foto 1
Appartamento a San giovanni teatino in Via Camillo Benso di Cavour - Foto 2
Appartamento a San giovanni teatino in Via Camillo Benso di Cavour - Foto 3
Appartamento a San giovanni teatino in Via Camillo Benso di Cavour - Foto 4
Appartamento a San giovanni teatino in Via Camillo Benso di Cavour - Foto 5

Appartamento, San Giovanni Teatino

Via Camillo Benso di Cavour

€ 145.000

Descrizione

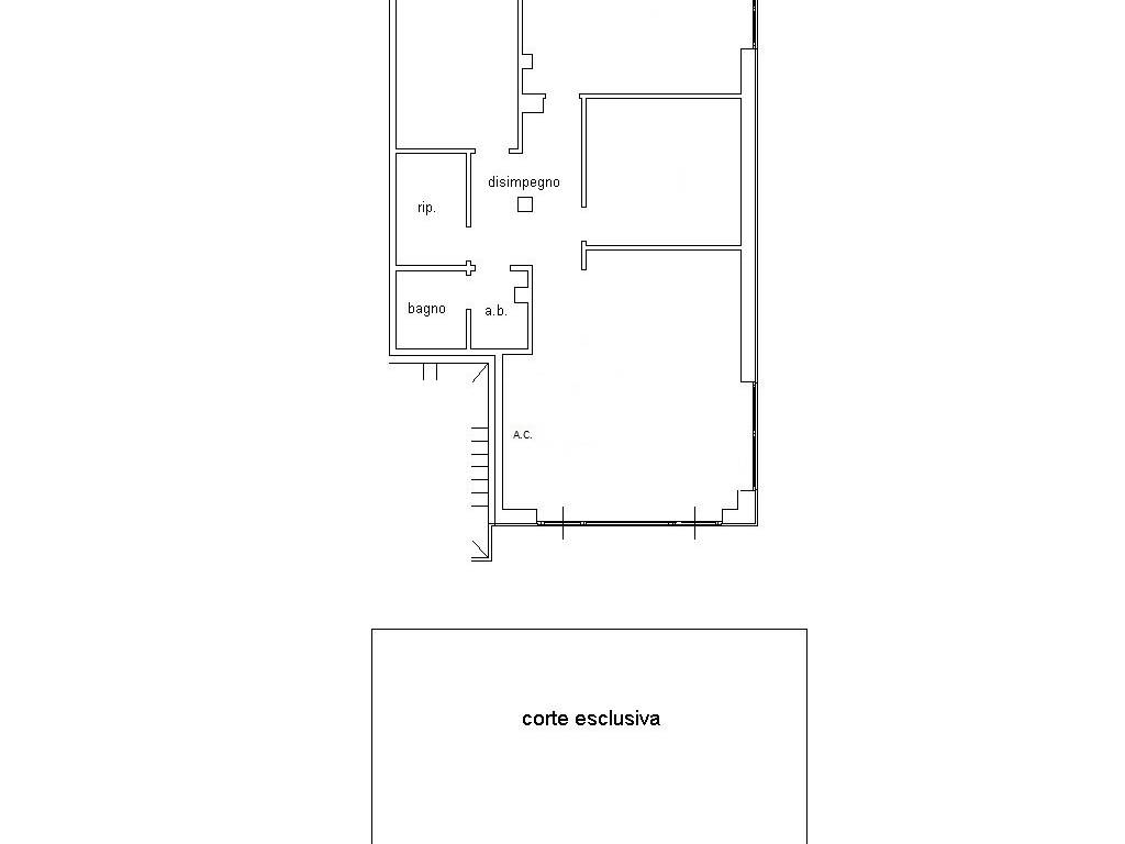
APPARTAMENTO TRILOCALE CON INGRESSO INDIPENDENTE e GIARDINO San Giovanni Teatino in via Cavour proponiamo in vendita in palazzina di recente costruzione APPARTAMENTO (attualmente adibito a studio med

Inserzionista

Niro Immobiliare

Mail Alert Inserisci il tuo annuncio