Appartamento a Empoli in VIA PALADINI - Foto 1
Appartamento a Empoli in VIA PALADINI - Foto 2
Appartamento a Empoli in VIA PALADINI - Foto 3
Appartamento a Empoli in VIA PALADINI - Foto 4
Appartamento a Empoli in VIA PALADINI - Foto 5

Appartamento, Empoli

VIA PALADINI

€ 90.000

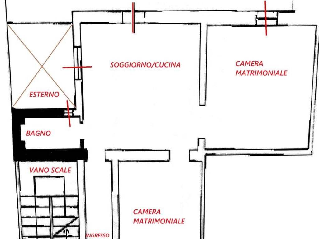
Descrizione

Empoli, in zona ottimamente servita tra la stazione ferroviaria e il centro storico (via Giuseppe del Papa ), al secondo piano di palazzina di tre piani con un solo appartamento al piano, proponiamo

Inserzionista

StartHouse Immobiliare

Mail Alert Inserisci il tuo annuncio