Immobile a Asti in CORSO ALFIERI, 71 - Foto 1
Immobile a Asti in CORSO ALFIERI, 71 - Foto 2
Immobile a Asti in CORSO ALFIERI, 71 - Foto 3
Immobile a Asti in CORSO ALFIERI, 71 - Foto 4

Immobile, Asti

CORSO ALFIERI, 71

Prezzo su richiesta

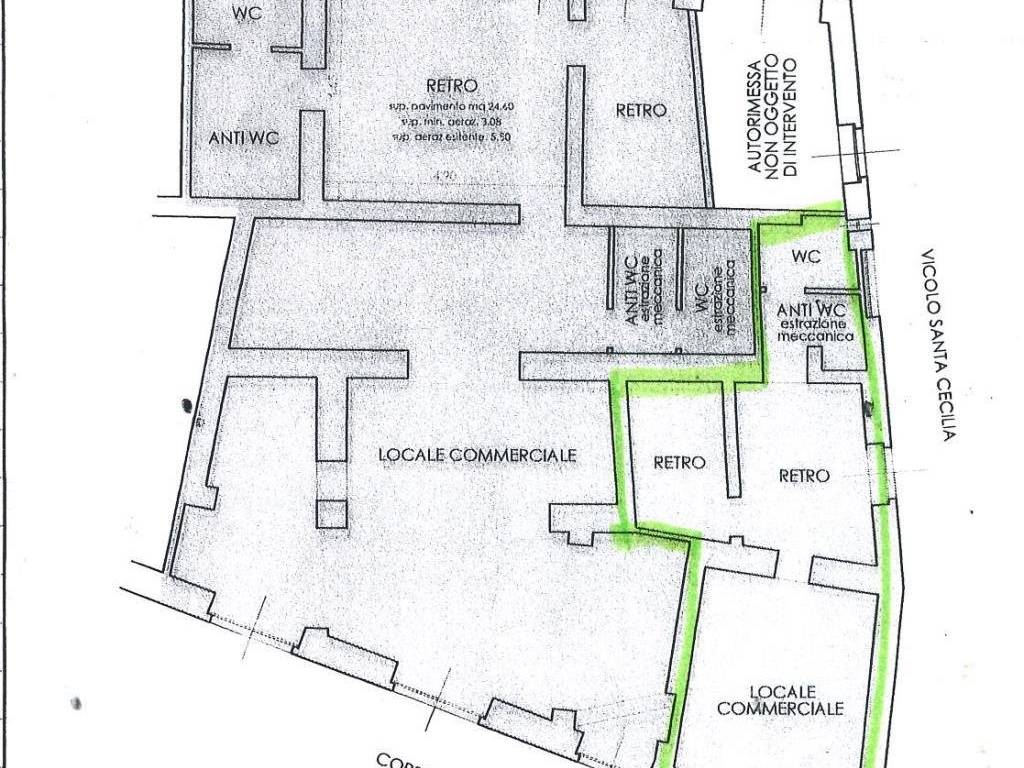
Descrizione

In corso Alfieri adiacente il piazzale dell'università e del parcheggio pubblico si affitta un negozio con ampie vetrine con la possibilità di dividerlo in due unità completamente autonome con superf

Inserzionista

Specialcase

Mail Alert Inserisci il tuo annuncio