Villetta a schiera a Uboldo in Via madonini - Foto 1
Villetta a schiera a Uboldo in Via madonini - Foto 2
Villetta a schiera a Uboldo in Via madonini - Foto 3
Villetta a schiera a Uboldo in Via madonini - Foto 4
Villetta a schiera a Uboldo in Via madonini - Foto 5

Villetta a schiera, Uboldo

Via madonini

€ 370.000

Descrizione

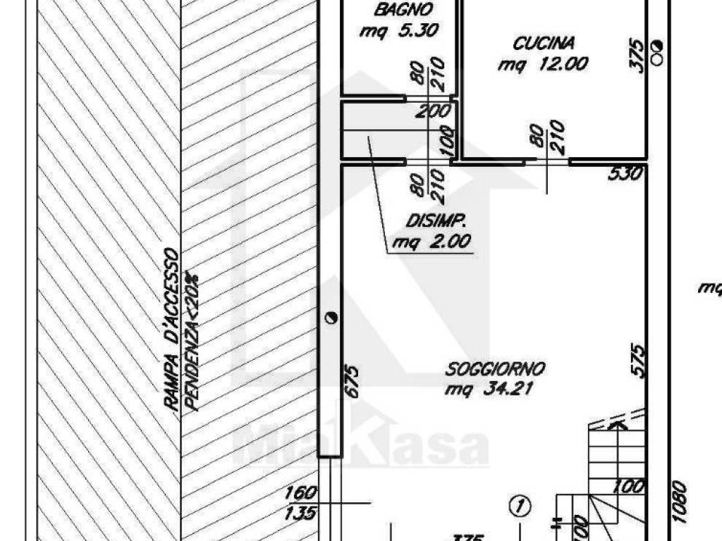
PROSSIMA REALIZZAZIONE UBOLDO - VILLA A SCHIERA DI TESTA. In zona semi-centrale del paese, prossima realizzazione di quattro villette a schiera. La villetta si svilupperà su due livelli abitativi fuo

Inserzionista

STUDIO UBOLDO Sas di Guagliardo Giovanni Mauro & C.

Mail Alert Inserisci il tuo annuncio