Immobile a Borgo ticino in Strada Statale Ticinese - Foto 1
Immobile a Borgo ticino in Strada Statale Ticinese - Foto 2
Immobile a Borgo ticino in Strada Statale Ticinese - Foto 3
Immobile a Borgo ticino in Strada Statale Ticinese - Foto 4
Immobile a Borgo ticino in Strada Statale Ticinese - Foto 5

Immobile, Borgo Ticino

Strada Statale Ticinese

€ 190.000

Descrizione

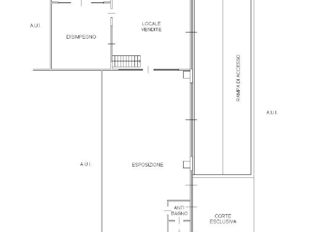
Ottima visibilità su strada statale ad intenso traffico, magazzino di mq 500 con annesso negozio showroom mq 235. L’unità immobiliare, in stabile con ampio parcheggio, è esposta nella parte inziale d

Inserzionista

Immobiliare Galeano

Mail Alert Inserisci il tuo annuncio