Appartamento a Ospitaletto in Via Seriola - Foto 1
Appartamento a Ospitaletto in Via Seriola - Foto 2
Appartamento a Ospitaletto in Via Seriola - Foto 3
Appartamento a Ospitaletto in Via Seriola - Foto 4

Appartamento, Ospitaletto

Via Seriola

€ 340.000

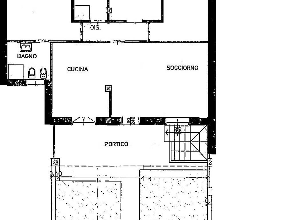
Descrizione

OSPITALETTO **Vendesi Appartamento in fase di realizzazione in zona residenziale!** Se stai cercando una casa che unisce comfort, eleganza e sostenibilità, non puoi perdere questa straordinaria oppor

Inserzionista

Castegnato Case Di Binetti Nicole

Mail Alert Inserisci il tuo annuncio