Appartamento a Reggello in via giglio - Foto 1
Appartamento a Reggello in via giglio - Foto 2
Appartamento a Reggello in via giglio - Foto 3
Appartamento a Reggello in via giglio - Foto 4
Appartamento a Reggello in via giglio - Foto 5

Appartamento, Reggello

via giglio

€ 260.000

Descrizione

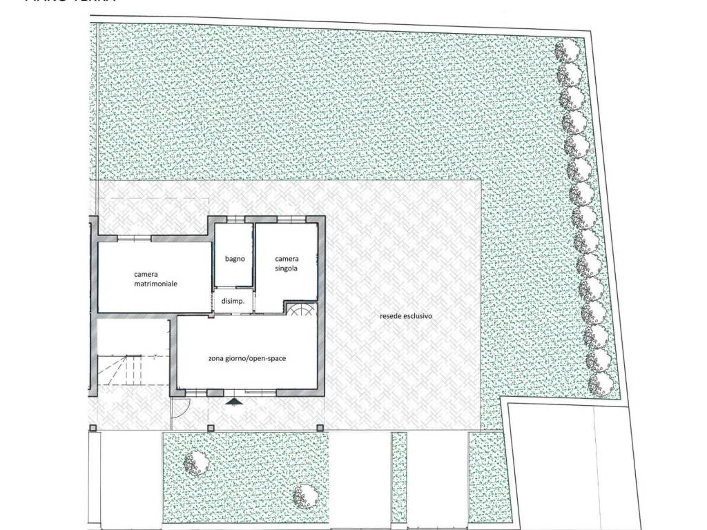
Sant'Ellero, in complesso di villette di nuova costruzione in classe A, appartamento con giardino di 40 mq, disposto al piano rialzato e dotato di taverna al piano terra, per una metratura complessiv

Inserzionista

SOGES ImmobiliaRE

Mail Alert Inserisci il tuo annuncio