Immobile a Cento in Via Bondenese, 2 - Foto 1
Immobile a Cento in Via Bondenese, 2 - Foto 2
Immobile a Cento in Via Bondenese, 2 - Foto 3

Immobile, Cento

Via Bondenese, 2

€ 130.000

Descrizione

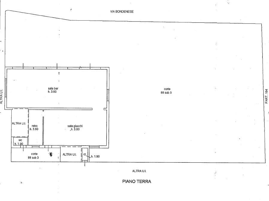
Proponiamo in vendita immobile commerciale in Via Bondanese, nel comune di Cento (Fe) frazione Pilastello, in zona di forte passaggio, il locale commerciale è di mq. 140 c. a. ideale per qualsiasi ti

Inserzionista

Bar Immobiliare

Mail Alert Inserisci il tuo annuncio