Palazzo / stabile a Canneto pavese in Frazione Beria - Foto 1
Palazzo / stabile a Canneto pavese in Frazione Beria - Foto 2
Palazzo / stabile a Canneto pavese in Frazione Beria - Foto 3
Palazzo / stabile a Canneto pavese in Frazione Beria - Foto 4
Palazzo / stabile a Canneto pavese in Frazione Beria - Foto 5

Palazzo / Stabile, Canneto Pavese

Frazione Beria

€ 520.000

Descrizione

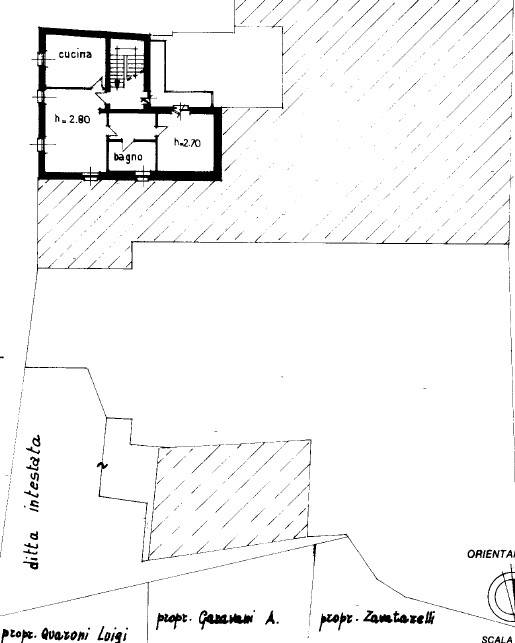
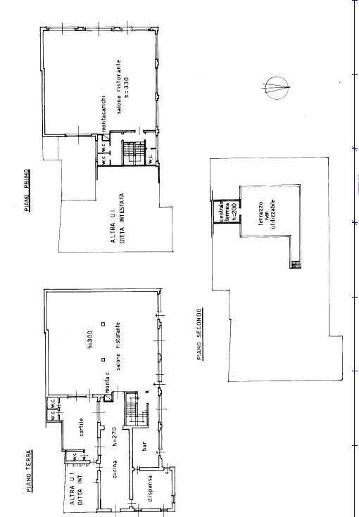
In zona Canneto Pavese, vendesi complesso immobiliare composto da: - Locale commerciale su 2 livelli di 300 mq circa (ex ristorante) - 2 appartamenti di 3 locali, ciascuno di 80 mq circa siti ai pian

Inserzionista

Immobiliare D.I. Coretti Nicola

Mail Alert Inserisci il tuo annuncio