Appartamento a Casamassima in Via Bari - Foto 1
Appartamento a Casamassima in Via Bari - Foto 2
Appartamento a Casamassima in Via Bari - Foto 3

Appartamento, Casamassima

Via Bari

Prezzo su richiesta

Descrizione

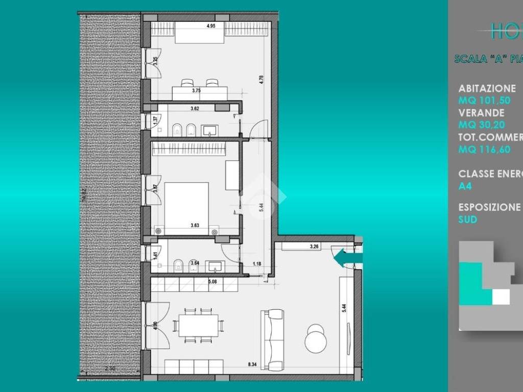
Appartamento primo piano, scala A, 3 vani di circa 101,50 mq+ 30,20 mq est., composto da: salone con angolo cottura, disimpegno, camera da letto, cameretta e due bagni. Esposizione su ampio balcone.

Inserzionista

Affiliato Tecnocasa: STUDIO CASAMASSIMA D.I.

Mail Alert Inserisci il tuo annuncio