Immobile a Macerata in via Cassiano da Fabriano - Foto 1
Immobile a Macerata in via Cassiano da Fabriano - Foto 2
Immobile a Macerata in via Cassiano da Fabriano - Foto 3
Immobile a Macerata in via Cassiano da Fabriano - Foto 4
Immobile a Macerata in via Cassiano da Fabriano - Foto 5

Immobile, Macerata

via Cassiano da Fabriano

€ 3.500

Descrizione

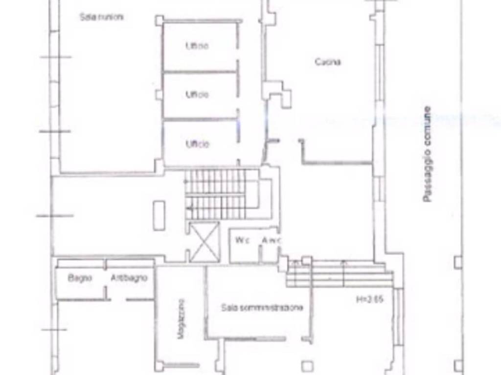
Rif: COM-101 Macerata -proponiamo in esclusiva - In zona commercialmente in espansione Ampio locale commerciale al piano terra di circa 390mq con e 3 grandi vetrine su strada ed 1 laterale, tre ampie

Inserzionista

Gabetti Franchising Macerata

Mail Alert Inserisci il tuo annuncio