Terreno a Sorso in Via Giuseppe Mazzini - Foto 1
Terreno a Sorso in Via Giuseppe Mazzini - Foto 2
Terreno a Sorso in Via Giuseppe Mazzini - Foto 3
Terreno a Sorso in Via Giuseppe Mazzini - Foto 4
Terreno a Sorso in Via Giuseppe Mazzini - Foto 5

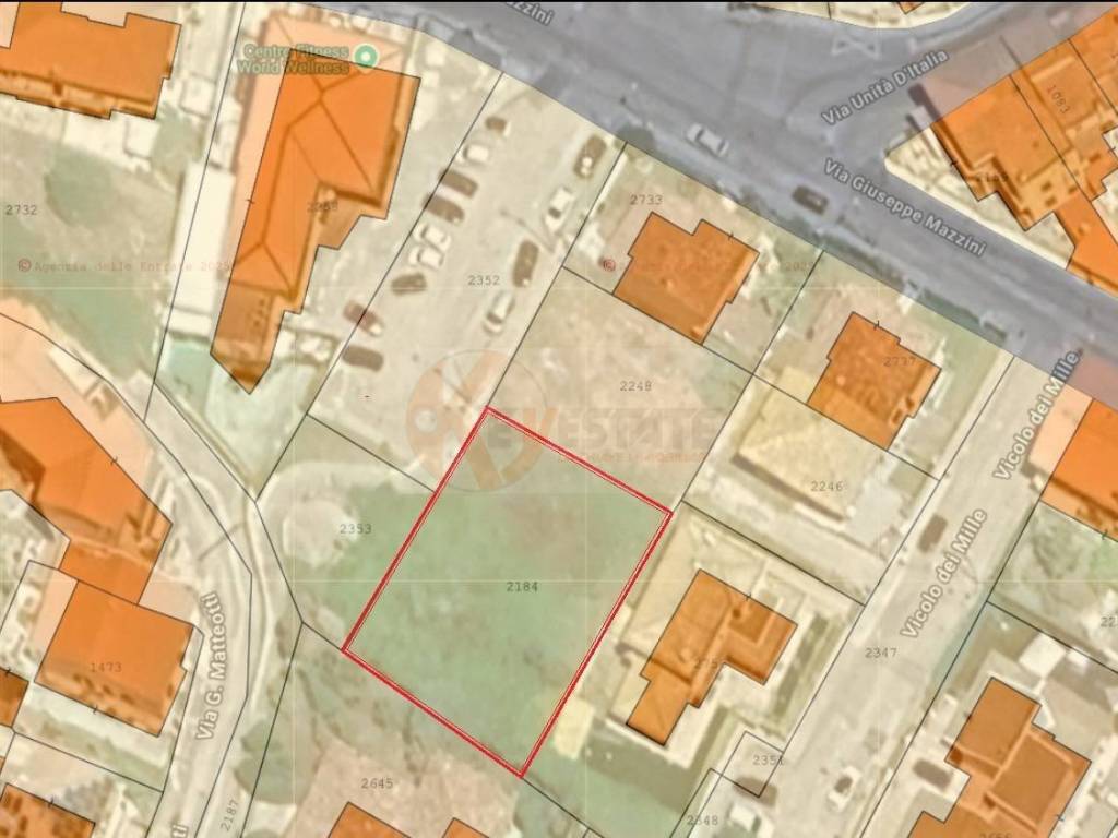
Terreno, Sorso

Via Giuseppe Mazzini

€ 68.000

Descrizione

Terreno edificabile con vista panoramica Via Giuseppe Mazzini, un'opportunità unica per costruire la casa dei tuoi sogni in una posizione tranquilla, riservata e a breve distanza dal centro cittadino

Inserzionista

Key Estate

Mail Alert Inserisci il tuo annuncio