Appartamento a Canosa di puglia in Via Esquilino, 26 - Foto 1
Appartamento a Canosa di puglia in Via Esquilino, 26 - Foto 2
Appartamento a Canosa di puglia in Via Esquilino, 26 - Foto 3
Appartamento a Canosa di puglia in Via Esquilino, 26 - Foto 4
Appartamento a Canosa di puglia in Via Esquilino, 26 - Foto 5

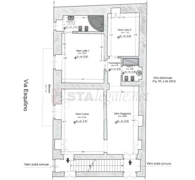
Appartamento, Canosa di Puglia

Via Esquilino, 26

€ 61.788

Descrizione

Vendesi in astagiudiziaria, appartamento su due livelli con TERRAZZO ESCLUSIVO, in OTTIME CONDIZIONI INTERNE, ubicato a Canosa Di Puglia, precisamente in Via Esquilino 26, posizione CENTRALE ricca di

Inserzionista

Valore Aggiunto Consulting

Mail Alert Inserisci il tuo annuncio