Rustico / casale a Arcole in Via Crearo - Foto 1
Rustico / casale a Arcole in Via Crearo - Foto 2
Rustico / casale a Arcole in Via Crearo - Foto 3
Rustico / casale a Arcole in Via Crearo - Foto 4
Rustico / casale a Arcole in Via Crearo - Foto 5

Rustico / Casale, Arcole

Via Crearo

€ 109.000

Descrizione

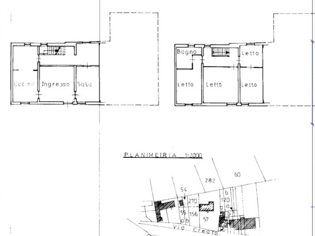
Vendesi rustico su due livelli da ristrutturare, con ipotesi di progetto già configurata

Inserzionista

Geis Costruzioni srl

Mail Alert Inserisci il tuo annuncio