COMPOSIZIONE: ufficio al piano primo composto da ingresso nell'ampia sala d'attesa, due ambienti separati da pareti removibili e bagno di servizio. Locale servito da ascensore. CARATTERISTICHE: uffic ...
COMPOSIZIONE: Proponiamo un negozio al piano terra, con ampia zona espositiva, due bagni di servizi e locale caldaia. CARATTERISTICHE: locale commerciale moderno, con ampie vetrate che si affacciano ...
Este, centro storico: proponiamo in affitto prestigioso ufficio al piano 1° in palazzo signorile di poche unità servito da ascensore. Completamente ristrutturato, presenta ingresso, ampio ufficio att ...
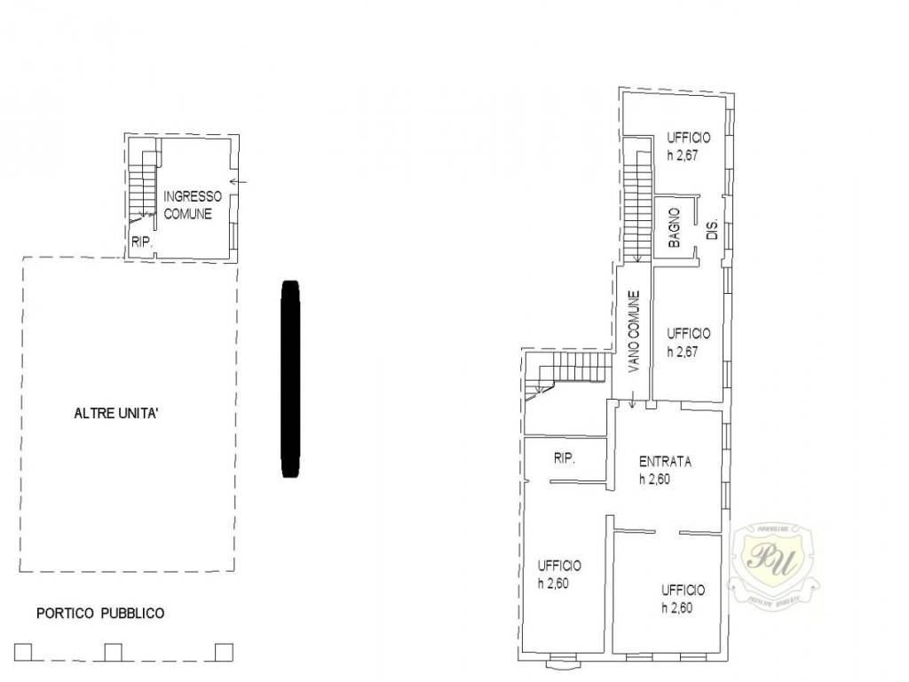
Este, centro storico: in palazzina di poche unità, proponiamo in affitto ufficio al piano primo completamente ristrutturato, composto da ampio ingresso/reception, 3 locali di varie dimensioni, ripost ...
In affitto: Soluzione ideale per chi cerca uno spazio professionale moderno e versatile. Situato in una posizione strategica, questo ufficio offre molteplici vantaggi. Canone richiesto €400, è compre ...
Scopri questa straordinaria opportunità di affitto nella zona artigianale di Este! Proponiamo un comodo e spazioso laboratorio/magazzino di 123 mq, situato al piano terra. Questo immobile è caratteri ...
In centro proponiamo ufficio posto al piano primo di circa 100 mq. Composto da ingresso da 4 stanze, bagno e ripostiglio. Riscaldamento a pavimento. Basse spese condominiali. Con un'esperienza di olt ...
Este, zona centrale: affittasi negozio al piano terra di circa 40 mq open -space con bagno ed antibagno (in questo momento con alcuni divisori in cartongesso che si possono togliere a seconda del tip ...
In centro ad Este, proponiamo in affitto, elegante ufficio sviluppato su due livelli, sito in un contesto interno e tranquillo. L'immobile è composto da: locale d'ingresso con scrivania, sala d'attes ...
Proponiamo in affitto, nel centro di Este, storico negozio, caratterizzato da due grandi vetrine fronte strada. Il locale è costituito da un unico ambiente open space e da un magazzino sul retro. Pre ...